Anacortes 32 - Interior Drawings

wpe15.gif (19380 bytes)
The Interior Profile
wpe17.gif (12441 bytes)
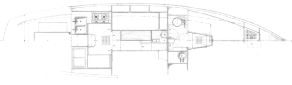
The Interior Plan View,  "mirrored" joinerwork is not drawn to save time

Back to Previous Page / Back to Design Section